A Glimpse Inside Rum’s Edwardian Masterpiece
Kinloch Castle, built between 1897 and 1900 on the Isle of Rum, is one of Scotland’s most distinctive surviving Edwardian mansions. Commissioned by Sir George Bullough, the castle was designed not only as a luxurious private residence but also as a showcase of modern innovation and aristocratic grandeur.
The plans below offer a detailed architectural insight into the building’s five levels—from the utilitarian basement to the ornate public rooms, private family quarters, and intricate roof structure. These floor plans reveal both the opulence of the lifestyle it supported and the complex infrastructure needed to maintain it.
Whether you’re a historian, architect, heritage visitor, or just curious about how the other half lived in the early 20th century, these blueprints provide a rare window into the design of one of Scotland’s most eccentric and ambitious country houses.
Please take your time exploring these fantastic blueprints – to zoom in on them simply click on the image and enhance.
Jump to:
🟫 Basement Floor
This level is primarily utility and service-focused, reflecting the castle’s operational infrastructure. Key rooms include:
- Old Wine Cellar, Coal Cellar, and Oil Store – indicating storage for fuel and provisions.
- Boiler Room – heating infrastructure for the castle.
- Dry Goods Store, Multiple Storage Rooms, and a Laboratory – suggesting both functional and potentially experimental uses.
- Internal and external access routes surround a central Courtyard.
🟥 Ground Floor
The ground floor serves as the public and social heart of the castle:
- The Hall sits prominently at the southern center, acting as the castle’s grand entry point.
- Reception, Dining Room, Orchestrion Room, and Ball Room – formal entertaining spaces.
- Library, Empire Room, Smoking Room, Billiards Room, and Gun Room – recreational and leisure use.
- Dental Surgery – a unique feature, suggesting private medical care provision.
- Service areas include: Kitchen, Prep Area, Pantry, and Store.
- Hostel Kitchen and Dining Room – likely later adaptations for staff or guests.
🟨 First Floor
This level is dedicated to private residential quarters, likely for the castle’s family and important guests:
- Key bedrooms include:
- Sir William Bass Bart’s Room
- Sir George’s Room
- Lady Monica’s Bedroom
- Rose Room, Court Room, Oak Rooms 1–3
- Manager’s Suite: bedroom and sitting room.
- Additional features:
- Conservatory Room
- Multiple Bathrooms, Kitchen, Office
- Light Well for natural interior lighting
- Layout reflects clear status divisions between staff and residents.
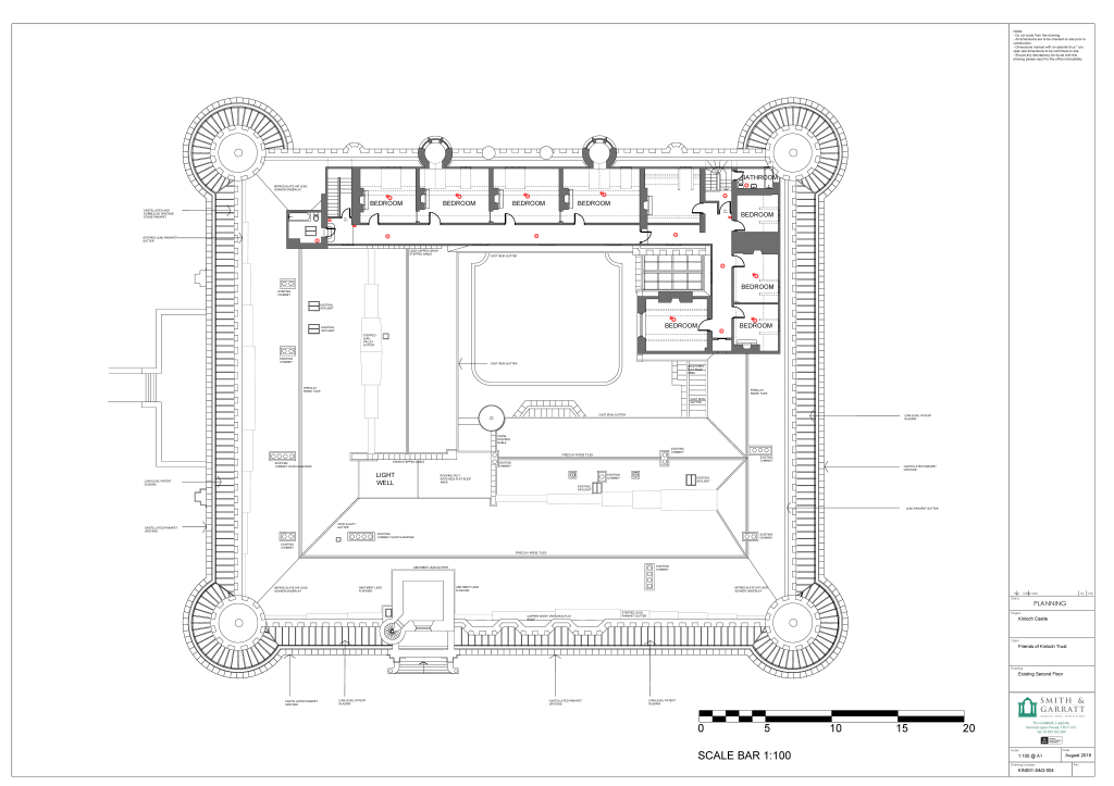
🟦 Second Floor
This upper level is mostly composed of bedrooms—likely servant quarters or overflow accommodation:
- 11 compact BEDROOMs
- 1 shared bathroom
- Functional layout suggesting less formal usage
- Includes access to roof-level features (skylights, chimneys)
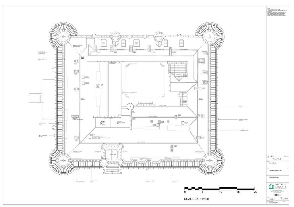
⬛ Roof Plan
The roof drawing reveals technical details of the castle’s external structure:
- Mitred Slate Hips, Lead Flashings, Stone Parapets, Gutters, Skylights, and Dormer Roof Windows
- Multiple chimneys and stepped gables
- Flat roofing areas, some visibly patched
- Strong emphasis on drainage, ventilation, and architectural detail




